Lote en venta con fondo a la laguna. Barrio San Roque. Canning Village

direccion El Deslinde 1100, Tristán Suárez

volver Volver al listado
left
right
left
right

Venta

Rebajado

Precio rebajado

USD 65.000

Rebaja 5 %
  • Oportunidad
  • Tipo de propiedad Lotes / Terrenos
  • Superficie total Sup. total 655m2

Acerca de la propiedad

LOTE EN VENTA BARRIO SAN ROQUE - CANNING VILLAGE - EIDICO

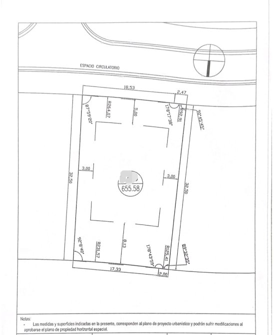
Superficie: 619m2
Frente: 17,33
Fondo: 18,53
Lateral: 32,50

SAN ROQUE
Localidad: Canning
Hectáreas totales: 30 ha
Cantidad unidades: 282
Superficie promedio por unidad: 640
Atributos:
Eidico llegó a Canning en el 2007 con el lanzamiento de La Horqueta de Echeverría, su primer barrio en la zona. En los próximos años continuamos desarrollando barrios en el lugar como Santa Juana y Santa Inés I, II y III.

En el año 2015 nos agrandamos. Lanzamos nuestro primer masterplan en zona sur, Canning Village. El primer barrio en el complejo fue San Felipe, que más tarde fue acompañado por San Simón I y II. Todos estos barrios se encuentran finalizados.  Santa Inés III y San Simón II se encuentran en etapa de obra. 

Más de 1.450 familias han suscripto sus lotes y muchas han construido su casa y viven en nuestros barrios en Canning.
Otras características:
INFRAESTRUCTURA

• Laguna de 3,5 hectareas.
• Acceso primario y secundario
• Calles internas asfaltadas y cordón cuneta
• Redes subterráneas de: electricidad, agua, cloaca y gas
• Planta de tratamiento de efluentes
• Sector deportivo: 2 canchas de tenis, 1 cancha de fútbol 8 y 1 de paddle
• Salón de usos múltiples
• Parquización
• Pilares de servicios
• Alumbrado público
• Alambrado perimetral

Notas: La información y medidas suministradas son aproximadas y deberán ratificarse con la documentación pertinente, y no compromete contractualmente a nuestra empresa. Las Fotografías provistas no son vinculantes ni contractuales. Pendiente de cumplimentar COTI. Roxana Veltri Gestiones Inmobiliarias CPMCLZ Nº4494 L9 F66

Comodidades

Ver más

Ubicación

Servicio brindado por

buscadorprop

Todos los derechos registrados:

grupotodo
whatsapp Whatsapp email Contactar telefono Llamar
Chatea con nosotros whatsapp